Planungen

Unsere Planungen gehen, je nach Kundenwunsch und Projektart, von der Ideenskizze über die Entwurfsplanung bis zum Pflanzkonzept. Bei den Planungen sind die persönliche Beratung, Bestandsaufahme vor Ort und Ihre Wünsche die Grundlagen für ein gelungenes Gestaltungskonzept. Unsere Pläne fertigen wir von Hand oder, nach Bedarf, als CAD-Zeichnung. 

Die Kosten für die planerischen Leistungen sind vom Planungsaufwand abhängig und werden zu Beginn besprochen.

 

 

 

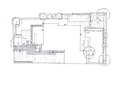
CAD- Planung

 

Ideenskizze,

händisch in

schwarzweiß

CAD-Planung,

auf grundlage 

der 

Ideenskizze

Ideenskizze,

coloriert

Ideenskizze,

schwarzweiß

Ideenskizze,

coloriert

Ideenskizze,

schwarzweiß

Druckversion | Sitemap
© Gartenbau Winter GmbH

Anrufen

E-Mail

Anfahrt